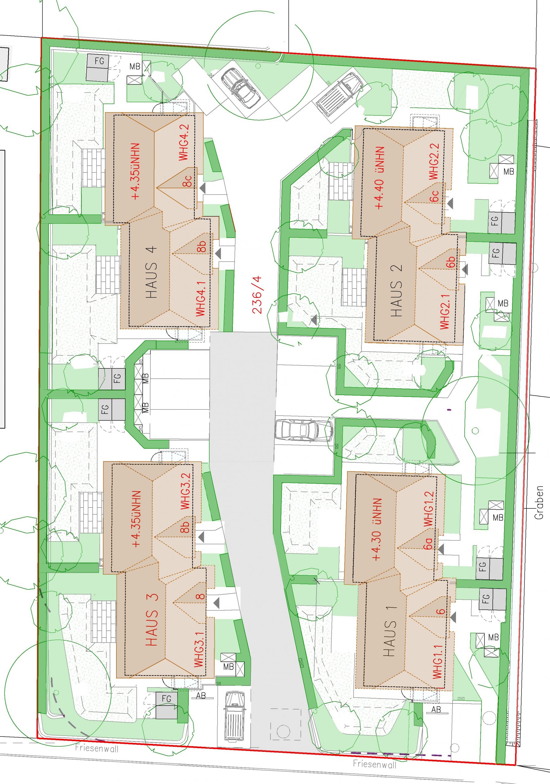
Neubau von vier Wohnhäuser in St. Peter-Ording
Neubau von vier Wohnhäusern mit je zwei Wohneinheiten
LPH 1-5 | 2022-2024
(als angestellte Architektin über das Architekturbüro Hansen, Sylt/Keitum)
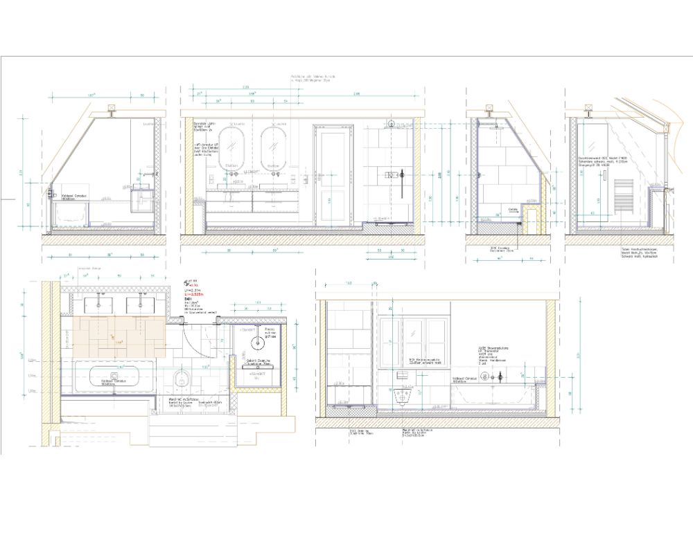
Bei diesem Projekt war ich von der ersten Idee über die Bauvoranfrage und den Bauantrag bis hin zur Genehmigungs- und Ausführungsplanung maßgeblich beteiligt. Darüber hinaus habe ich die Bemusterung begleitet sowie zahlreiche Detailplanungen und Ausführungszeichnungen erstellt.
In bester Lage, nur wenige Schritte vom Nordseestrand entfernt, entstanden vier typische Friesenhäuser mit Reetdach. Die Gebäude wurden mit Wohnebenen im Keller-, Erd-, Dach- und Spitzboden konzipiert, wobei der Spitzboden zusätzliche Abstellflächen und ein WC aufnimmt.
Die Wohneinheiten zeichnen sich durch eine hochwertige Ausstattung aus: drei Bäder pro Einheit, Natursteinböden, Eichendielen, individuelle Tischlereinbauten, Kamin und Sauna sorgen für hohen Wohnkomfort. Gestalterisch prägen Reetdächer mit Backengiebeln und Gauben das Erscheinungsbild und fügen die Häuser harmonisch in den regionaltypischen Kontext ein.
