Neubau eines Wohnhauses
Neubau eines Wohnhauses mit zwei Wohnungen
LPH 1-4 | 2024-2025
(als angestellte Architektin über das Architekturbüro Hansen, Sylt/Keitum)
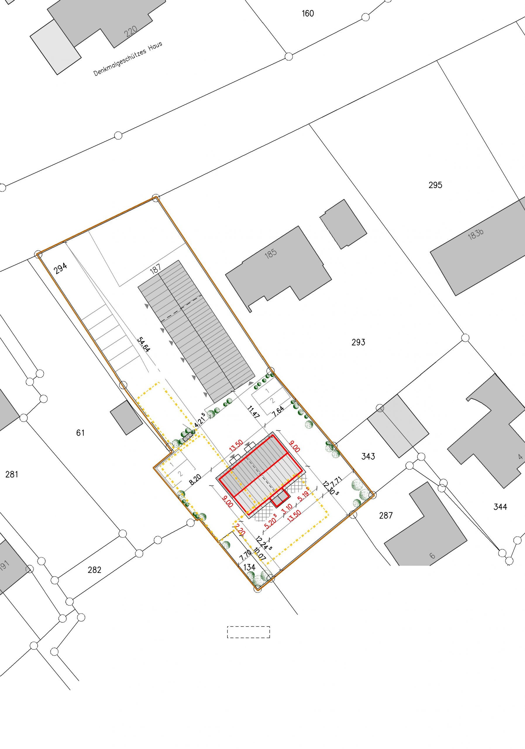
Dieser Auftrag bildete den zweiten Teil des Projekts für ein Heizungs- und Sanitärunternehmen und umfasste die Genehmigungsplanung für den Neubau einer sogenannten Stadtvilla auf dem rückwärtigen Bereich des Grundstücks.
Geplant wurden zwei identisch geschnittene Wohneinheiten. Im Erdgeschoss befindet sich jeweils ein offener Wohn-, Ess- und Kochbereich, während im Dachgeschoss zwei Zimmer sowie ein Bad untergebracht sind. Großzügige Schlafzimmer mit angeschlossenem Ankleidebereich sorgen für zusätzlichen Komfort.
Das Gebäude wurde in massiver Bauweise konzipiert. Ein überdachter Eingangsbereich, großzügige Fensterflächen in den Wohn- und Schlafräumen sowie ein klar gegliederter Grundriss prägen die Architektur. Gestalterisch entsteht durch den roten Verblendstein, das dunkle, flach geneigte Satteldach sowie anthrazitfarbene Fenster und Türen ein starker, zugleich harmonischer Kontrast.
