Neubau einer Gewerbehalle
Neubau einer Gewerbehalle
LPH 1-4 | 2023-2025
(als angestellte Architektin über das Architekturbüro Hansen, Sylt/Keitum)
Auftraggeber dieses Projekts war ein Heizungs- und Sanitärunternehmen in Nordfriesland.
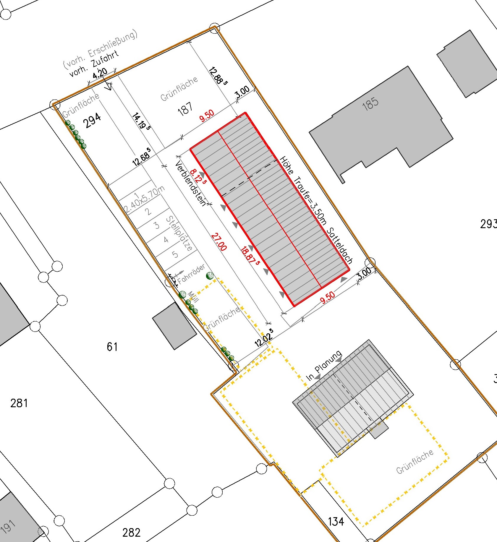
Planungsaufgabe war der Rückbau des bestehenden Unternehmenssitzes sowie die Neuplanung einer Gewerbehalle an anderer Stelle des Grundstücks. In dem Neubau sollten sowohl funktionale Büroräume als auch großzügige Lagerflächen untergebracht werden.
Zu Beginn des Projekts wurde eine Bauvoranfrage für das Gesamtvorhaben auf dem Grundstück gestellt. Eine besondere Herausforderung bestand darin, die Bauabschnitte so zu organisieren, dass der laufende Geschäftsbetrieb während der gesamten Bauzeit ohne Unterbrechung fortgeführt werden konnte.
Gestalterisch galt es zudem, die Straßenfassade sensibel in den gewachsenen Kontext einzubinden. Der straßenseitige Gebäudeteil wurde daher mit einer Verblendsteinfassade ausgeführt, die sich am gegenüberliegenden denkmalgeschützten Gebäude orientiert und den Neubau harmonisch in das bestehende Ortsbild einfügt.
auf mehr?
Wenn Du Lust hast, über Architektur hinauszugehen und Dein Zuhause auch auf tieferen Ebenen zu gestalten, dann schau bei Wohnpoetik vorbei.
Dort findest Du Inspiration und Begleitung rund um Gestaltung mit Sinn, wohnpsychologische Impulse und energetische Aspekte, die Dein Leben spürbar bereichern können.
Achtsam bauen und wohnen © 2025 | Impressum | Datenschutz | Kontakt | Webdesign by Medienassistenz
